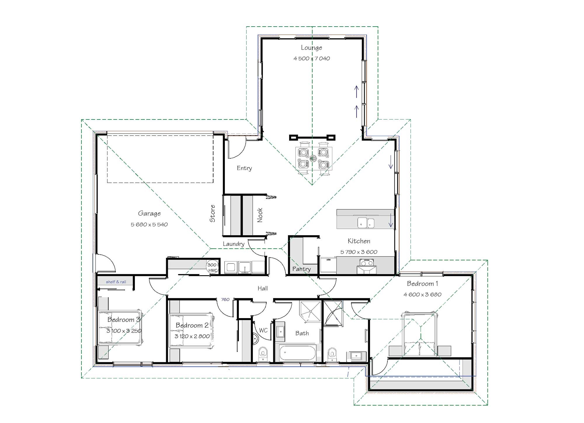
Knightstream
186m2
Knightstream
by Touchstone Homes Christchurch
- Master bedroom with ensuite and walk-in wardrobe
- Modern kitchen with quality fittings
- Open plan dining and living
- Separate lounge
- Separate laundry
- Full appliance package
- Wardrobe and storage cupboard shelving
- Heatpump to living
- Hallway wall heater
- Bathroom heating, extractor fan and heated towel rails and quality fittings
- Security alarm
- Quality floor coverings
- Double glazing
- External clothes line
- Brick letter box
- Double garage with insulated garage door and 2 remotes
- All building, engineer reports, resource consents, consent plans and connections to services.
Bedrooms
Living Rooms
Bathrooms
Garage Spaces
